Продажа дома

Московская область, Дмитров,

167 м²
Площадь
95 м²
Жилая площадь
40.00 м²
Площадь кухни
2
Этажность
8 сот
Площадь участка

7 000 000 ₽

41 917 ₽ за м²

ID объявления 12118718

Поделиться

Добавить в избранное

Арт. 88301048.

Продается двухэтажный дом на участке 8 соток в экодеревне Шихово

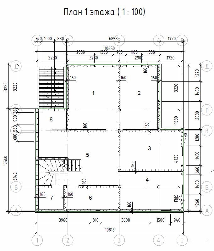
Площадь дома: 167 м2

Площадь комнат: 25+25+15+15+15 м2

Площадь участка: 8 соток

Огороженный участок



О районе:

Экологичный район расположен в 45 км от МКАД в лесном массиве у реки Каменка. Быстрый выезд на Рогачевское шоссе и ЦКАД.

До дома ведет асфальтированная дорога. Вблизи с деревней базируется знаменитая зооферма Шихово. Для комфортного проживания местных жителей подведено электричество, установлено уличное освещение, проведен газ. В шаговой доступности расположены школа и детский сад. Рядом с домом остановка общественного автотранспорта.

Категория земель – Земли населенных пунктов, можно получить регистрацию по месту жительства.



О доме и участке:

Дом построен по индивидуальному проекту в 2023 г. и пригоден для круглогодичного проживания. Комфортная планировка: кухня, 2 просторные гостевые комнаты, 3 изолированные спальни, санузел в доме. Окна комнат открывают вид на лес и прилегающие участки. Помещения всегда наполнены светом и солнечным теплом.

Участок правильной формы, огорожен забором. Своя скважина для водоснабжения, канализация – септик.

1 собственник, дом подходит под ипотеку. Быстрый выход на сделку и гарантия безопасности от компании «Цитадель».

Приглашаем Вас на показ! ЗВОНИТЕ!

Дата обновления: 9 октября 2025

Дом/Коттедж/Таунхаус/Дуплекс Ипотека От собственника